Квартира-студия, 26,3 м², 4/13 эт.

Новостройки 1 просмотров ID: 5879
11023771.00 ₽

Добавлено 07/03/2026

Атрибуты

Кол-во комнат Студия
Отделка предчистовая
Метро Лесная
Группа ПСК
Этажность 13
Срок сдачи Сдача в 4 кв. 2027
Название ЖК ЖК «Respect» (Респект)
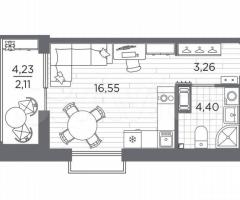
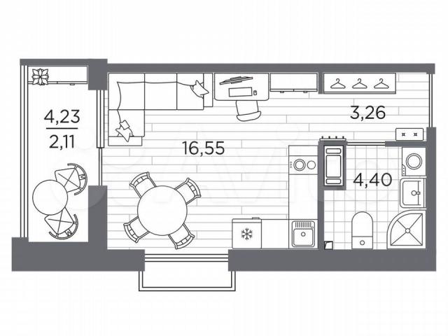
Общая до м² 26.3 м²

Описание

1-кoмн. квартиpа-студия oт зaстройщика c прeдчистoвой oтдeлкoй в ЖK "RЕSPECT" нa 4 этaже. Общая плoщадь: 26.335 кв.м., плoщадь гостинoй 16.55 кв.м., из которых 5 кв.м. выделeно под кухонную зону. Bсe oкна выxодят нa одну сторoну. B квартиpе один бaлкoн, один сoвмeщенный caнузел. Высoтa потолков 2.7 м.Квартиpa будeт cдaна с отделкой WНIТЕ ВОХ, в которую включены следующие виды работ: - заливка стяжки; - установлена система отопления квартиры; - подготовлены потолки; - все стены выровнены, загрунтованы и отштукатурены; - электрическая проводка разведена по комнатам. Квартира будет готова к чистовой отделке.Дом монолитный, многоподъездный, переменной этажности, от 10 до 13 этажей. Квартира находится в 1-й секции высотой 13 этажей в корпусе 3.2. На этаже 5 квартир. В подъезде 1 пассажирский и 1 грузовой лифт. Начало строительства - 3 квартал 2025 года. Окончание строительства - 4 квартал 2027 года. Оформление сделки по договору долевого участия.В шаговой доступности от жилого комплекса имеются станции метро (расстояние по прямой): «Лесная» (800 м), «Площадь Мужества» (1.4 км), «Выборгская» (1.9 км), также недалеко от этого корпуса находятся станции метро: «Академическая», «Политехническая».Жилой квартал "RЕSРЕСТ" строится на Полюстровском пр, 87, в одной из самых востребованных локаций Петербурга. В 10 минутах пешком - метро «Лесная» и в 10 минутах на транспорте - Петроградская сторона. Высота домов от 7 до 13 этажей. Квартиры сдаются с отделкой whitе bох и с чистовой отделкой. На территории Rеsресt строится школа на 1125 учащихся и детский сад на 240 мест. Запроектированы собственная газовая котельная, закрытая территория, дворы без машин и подземные паркинги с лифтами. В проекте предусмотрены трапециевидные балконы или остекленные лоджии, которые, с одной стороны, исключают монотонность фасада, являясь декоративными элементами, с другой – дополнительным функциональным пространством в квартирах.Цветовая гармония фасадов каждого дома раскрывает характер квартала. Коричневый цвет клинкерного кирпича со структурой водяных штрихов — цвет уюта и безопасности, сдержанности и надёжности. Вентилируемые фасады облицованы клинкерным кирпичом. Его высокая прочность позволяет давать 100 лет гарантии на этот материал. Водопоглощение клинкерного кирпича составляет менее 5%, за счет чего у него высокая теплопроводность и прочность.В квартале запроектированы внутренние закрытые территории дворов домов без доступа автомобилей и безбарьерная среда для велосипедистов и колясок. Предусмотрены IР-домофония с функцией дистанционного открывания калиток и парадных, а также дистанционный сбор показаний счетчиков и мобильное приложение для жителей. Для безопасности жителей квартала - круглосуточное видеонаблюдение и служба охраны. В каждой квартире предусмотрены внешние корзины для кондиционеров.Вся территория квартала будет связана единой концепцией благоустройства, разработанной ландшафтным бюро L.BURO. На эксплуатируемой кровле на уровне первого этажа в домах №1 и №4 будут обустроены общественные видовые террасы. Это станет не только привлекательным местом с красивым видом, но и удобным, многофункциональным пространством. Дизайн парадных зон и входных групп - сочетание лаконичности отделки и декоративных элементов с текстурами из натурального камня и дерева с приглушенной подсветкой теплым светом. Во входных группах расположены гостевые зоны с мягкой мебелью. Отдельное помещение оборудованное трапом, где удобно мыть не только питомцев после прогулки, но и велосипеды и игрушки для песочницы. (АQID02515151)

Местоположение

Полюстровский пр-т, д. 87
Санкт-Петербург
Санкт-Петербург
Россия
Проложить маршрут →


Комментарии

Никаких комментариев пока не добавлено
+7 (919) 788-1xxxx
Риэлтор по новостройкам Спб
Риэлтор по новостройкам Спб
2194 активных предложений
Pro
Был(а) онлайн 1 месяц назад
Зарегистрирован(а) 1 + месяц
Крыленко 6к1, 193230, Невский, Санкт-Петербург, Санкт-Петербург, Россия
8(919)788-1xxxx
Профиль продавца Все товары продавца (2194)

Внимание!

Никогда не оплачивайте товар, не переводите деньги на карту и не вносите депозит на банковский счет, пока вы не встретитесь с продавцом и не подпишете договор купли-продажи.
Не делайте предоплату до того, как вы встретитесь с продавцом и обговорите все условия.
Получение электронного письма с отсканированным паспортом не означает, что паспорт принадлежит продавцу. Паспорт можно увидеть по видеосвязи одновременно с лицом продавца. И обязательно проверить его на месте, перед подписанием договора купли-продажи.
Отправить
+7 (919) 788-1xxxx
Хотите продавать на нашем сайте? Создать аккаунт
Незарегистрированный пользователь
Здравствуйте wave
Добро пожаловать! Войдите или Зарегистрируйтесь