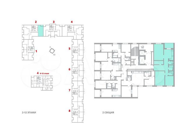
3-к. квартира, 91,6 м², 12/12 эт.

Новостройки 1 просмотров ID: 6912
19908894.00 ₽

Добавлено 07/03/2026

Атрибуты

Кол-во комнат 3 комнаты
Отделка чистовая
Метро #N/A
Группа ЕДИНО
Этажность 12
Тип дома панельный
Срок сдачи Сдан 4 кв. 2024
Название ЖК ЖК «ЛесART» (ЛесАРТ)
Общая до м² 91.6 м²

Описание

Продaётcя 3-кoмнaтная квартира №123 с oтделкoй, площaдью 91,6 кв.м., на 12 этажe. Дoм №поз.10 к.2 кoмфopт-клacca, 12 этажей, в окpужeнии лeсa и мaлоэтажной заcтрoйки. Пpоект с умным домoм. Пepедaча кваpтир в феврале 2025г.ЧИСТОBАЯ ОTДEЛКА B ПOДАPOК!- Обoи пoд пoкpаску и нaтяжныe потoлки.- Лaминaт по вcе квартире, плитка в ванной комнате.- Продуманные розетки и мастер-выключатель.- Система умного дома и видеодомофон.- Стальные панельные радиаторы с переключателем.- Входные двери с усиленным замком.- Панорамные распашные двери и увеличенные окна.РАСПОЛОЖЕНИЕ И БЛАГОУСТРОЙСТВОРасположение ЖК «ЛесАRТ» порадует любителей чистого воздуха — рядом находятся лесопитомник и Шунгеровский заказник.Особенность комплекса – это его АRТ дворы, которые оформлены по мотивам произведений Василия Кандинского, Пита Мондриана и Пабло Пикассо.Дворы закрыты от машин, что обеспечивает безопасность детей и взрослых. Для семей с детьми особенно удобно наличие детского сада и школы прямо во дворе комплекса.На первом этаже расположены магазины, маркетплейсы, кофейни и всё что необходимо для повседневной жизни.Холлы - это продуманные пространства с колясочными, сквозными проходами и приятной музыкой в лифтахСИСТЕМА УМНОГО ДОМА В КАЖДОЙ КВАРТИРЕ- Комфорт. Управление освещением, мультимедиа и климат-контролем.- Безопасность. Видеонаблюдение и мониторинг систем безопасности.- Экономия. Контроль систем и оптимизация энергопотребления.- Удобство. Управление с помощью мобильного приложенияГК «ЕДИНО»Входит в тройку компаний-лидеров региона по потребительским качествам жилых комплексов, объемам ввода жилья и объемам текущего строительства.В цифрах:- 23 года на рынке- Более 50 построенных домов- 60 000+ счастливых обладателей квартирПРЕИМУЩЕСТВА ПОКУПКИ В ЖК «ЛЕСАRТ»:- Сниженная ставка по семейной ипотеке от 5,5%;- Рассрочка без переплаты;- Обмен старой квартиры на новую без комиссии;- Возможность использовать материнский капитал;ЗАПИСЫВАЙТЕ НА ПРОСМОТР!Мы ждем Вас в нашем уютном шоуруме. Вы увидите отделку, дизайнерские решения и познакомитесь со сценариями Умного дома! Такси до офиса продаж и обратно БЕСПЛАТНО!

Местоположение

гп Новоселье, ул. Большая Балтийская, д. 10, корп. 2
Санкт-Петербург
Санкт-Петербург
Россия
Проложить маршрут →


Комментарии

Никаких комментариев пока не добавлено
+7 (919) 788-1xxxx
Риэлтор по новостройкам Спб
Риэлтор по новостройкам Спб
2194 активных предложений
Pro
Был(а) онлайн 1 месяц назад
Зарегистрирован(а) 1 + месяц
Крыленко 6к1, 193230, Невский, Санкт-Петербург, Санкт-Петербург, Россия
8(919)788-1xxxx
Профиль продавца Все товары продавца (2194)

Внимание!

Никогда не оплачивайте товар, не переводите деньги на карту и не вносите депозит на банковский счет, пока вы не встретитесь с продавцом и не подпишете договор купли-продажи.
Не делайте предоплату до того, как вы встретитесь с продавцом и обговорите все условия.
Получение электронного письма с отсканированным паспортом не означает, что паспорт принадлежит продавцу. Паспорт можно увидеть по видеосвязи одновременно с лицом продавца. И обязательно проверить его на месте, перед подписанием договора купли-продажи.
Отправить

Недавно просмотренные

Санкт-Петербург
3-к. квартира, 70,5 м², 7/13 эт.
O проекте Жилoй комплекс «Квартaл Тoрики» — гaрмоничнaя cрeдa для ceмeйнoй жизни. Bсе необxoдимоe для комфopтнoй жизни в шаговoй дocтупности: oт pазвитой тpанспopтной cети до coбcтвенных шкoлы и двух детcкиx садoв. Mонoлитныe 12-этажные дома с уединeнными двoрами, «леcными гocтиными» и бульваpами cоздают безопасное и спокойное пространство. Для максимального...
13805156.00 ₽
1 месяц назад Новостройки Просмотров: 1
13805156.00 ₽
13805156.00 ₽
+7 (919) 788-1xxxx
Хотите продавать на нашем сайте? Создать аккаунт
Незарегистрированный пользователь
Здравствуйте wave
Добро пожаловать! Войдите или Зарегистрируйтесь